12 Farquharson Rest

Offers Over £500,000



2 Bathrooms

4 Bedrooms

Freehold

2 Reception

EPC Rating B

Council Tax G

12 Farquharson Rest is a spacious and well-presented four-bedroom semi-detached home, ideally positioned within a popular modern development and enjoying an attractive open outlook across green space to the front.

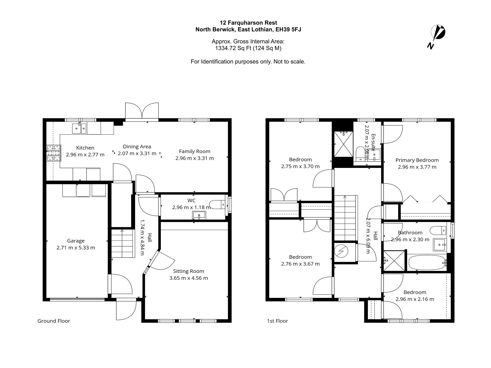
The accommodation begins with a welcoming entrance hall, which also provides internal access to the single integral garage, complete with a useful utility area. To the front of the property, the bright sitting room enjoys an open aspect and is enhanced by fitted wooden shutters, creating a comfortable and inviting space. A convenient downstairs WC completes the ground floor. To the rear, the impressive open-plan kitchen, dining and family room forms the heart of the home. The kitchen is finished in a modern shaker style and is well equipped with ample cupboard space and a range of integrated appliances. A large storage cupboard offers excellent additional space and would make an ideal pantry. Doors open directly onto the sunny south-facing rear garden, allowing for seamless indoor-outdoor living. The ground floor is further enhanced by beautiful herringbone wood flooring throughout, adding warmth and continuity to the space.

Upstairs, the property offers four well-proportioned bedrooms. The principal bedroom benefits from excellent built-in wardrobes and a contemporary en-suite shower room. The remaining three bedrooms all feature built-in storage and are served by a family bathroom with both a separate bath and shower. A linen cupboard on the landing provides further practical storage.

The property further benefits from gas central heating with split-zone control and double glazing throughout, ensuring comfort and efficiency.

Externally, the property continues to impress. To the front, there is a monoblocked driveway and a small lawned area. The fully enclosed south-facing rear garden is a standout feature — a beautifully established space with a variety of mature plants, shrubs and trees, including an eye-catching eucalyptus tree. The garden also features a lawn, decked area, pergola, and outdoor lighting and power, making it ideal for both relaxing and entertaining.

A beautifully presented and generously proportioned four-bedroom home with open outlook, stylish interiors and a stunning south-facing garden, set within a sought-after North Berwick development.






Fixtures and Fittings

All fitted floor coverings, blinds, selected light fittings, gas hob, oven, extractor hood, fridge/freezer, dishwasher and shed, are included in the sale price.

Property Features

• Beautifully presented four-bedroom semi-detached home in a popular North Berwick development
• Attractive open outlook across green space to the front
• Bright sitting room with fitted wooden shutters
• Spacious open-plan kitchen/dining/family room with integrated appliances & pantry cupboard
• Beautiful herringbone wood flooring throughout the ground floor
• Principal bedroom with fitted wardrobes & modern en-suite shower room
• Three further bedrooms with built-in storage
• Family bathroom with bath & separate shower
• Fully enclosed south-facing garden with lawn, decking, pergola & mature planting
• Monoblocked driveway, integral garage with utility space
• Gas central heating with split-zone control & double glazing throughout


 

Location

North Berwick lies on the East Lothian coast within easy commuting distance of Edinburgh and is one of the most sought-after towns in the county. It has a busy high street, with a wide range of local shops and restaurants and there is a Tesco and Aldi supermarket on the outskirts. North Berwick has two excellent golf courses, a yacht club, rugby club, tennis courts, a swimming pool and sports centre, and a luxury spa club is situated at the Marine Hotel. The town provides excellent local primary schooling and the well-regarded North Berwick High school. Private schooling is available at Compass in Haddington, Belhaven Hill in Dunbar, Loretto in Musselburgh with further choices available in Edinburgh. East Lothian has many fine walks by the sea and inland. Edinburgh can be reached in about 45 minutes by car or by train in half an hour and there are extensive bus services.

Note:  Interested parties should request their solicitor to note interest.  The Seller is not bound to accept the highest or any offer. These particulars do not form part of any contract.  The statements or plans are not warranted nor to scale.  Approximate measurements have been taken by sonic device at the widest point. Services and appliances have not been tested and no warranty is given as to their compliance with Regulations. No warranty is given that any interlinked system (smoke alarms, carbon monoxide detectors and heat detectors) have been installed in this property and interested parties should make their own enquiries.   Where computer generated 'virtually staged' images have been used on any images, these are for illustration purposes only and no guarantee is given as to the scale or accuracy of the virtual furniture used.